LOOK: Design plans for new Negro Leagues Baseball Museum, hotel taking shape
KANSAS CITY, Mo. (KCTV) - Ever the ambassador for Kansas City, Negro Leagues Baseball Museum president Bob Kendrick had a gleam in his eye as he gushed before a community audience about what could be on the southwest corner 18th and Paseo.
“All of us at the Negro Leagues Baseball Museum are tremendously, proud of what we are embarking on, this next journey for this museum,” Kendrick began.
The plan submitted to the city for rezoning and redevelopment would have an interconnected L shape of structures to include new hotel connected to a new Negro Leagues museum that would then connect to the historic Paseo YMCA building.
“That building is tremendously significant because it’s the birthplace of the Negro Leagues,” Kendrick said. “That’s where the leagues were established in 1920.”
When developer Michael Collins, the founder and CEO of Grayson Capital, approached Kendrick about his idea, it felt meant to be.
The museum already owns the building. Kendrick detailed that philanthropist Landon Rowland bought the former Paseo YMCA and donated it to the museum. The Y sat empty for decades before the museum began renovating and restoring it to create the Buck O’Neil Education and Research Center there.

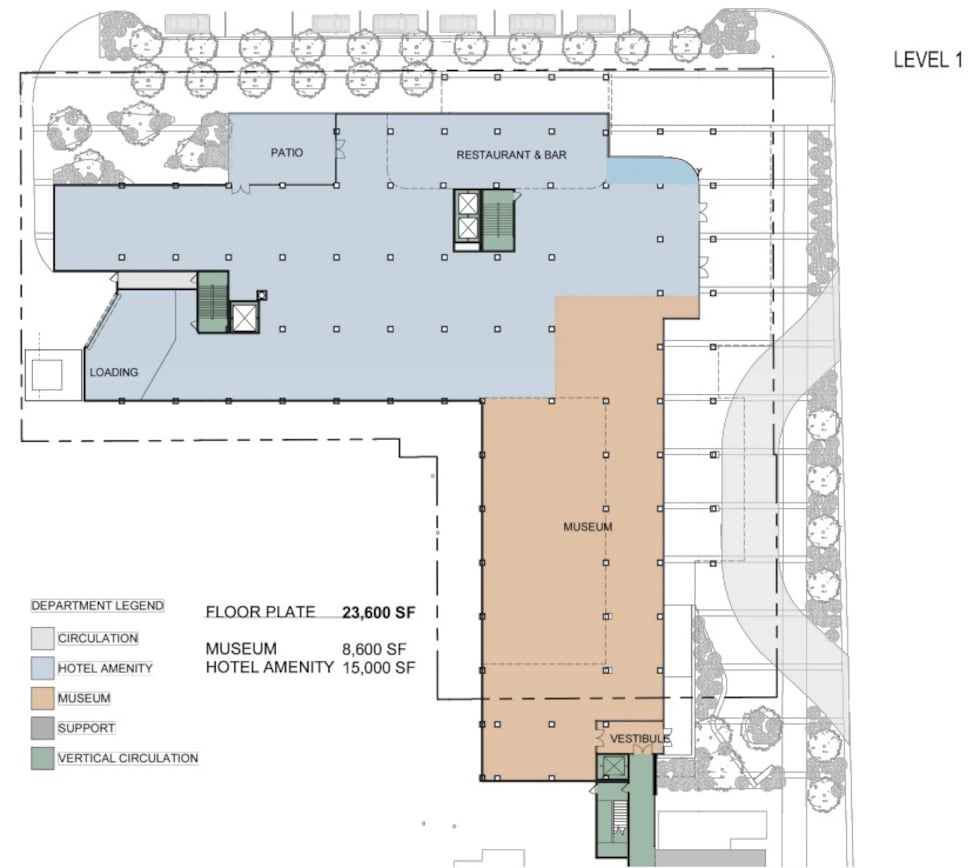
The new museum would be three times its current size, taking up the section of The Paseo that stretches from 18th Street south to the YMCA building. The plan submitted with the city indicates it would be two stories tall, but the development firm indicated Tuesday that they are considering a third story for the museum with a rooftop deck.
The 7-story hotel would take up a block of 18th Street from The Paseo west to Grove Street. They have designed it for 127 guest rooms with meeting space and restaurants or bars on two levels.

THE MUSEUM
The current Negro Leagues Baseball Museum sits on 18th Street to the east of Paseo, next to the American Jazz Museum and across the street from the historic Gem Theater.
“Our museum started, as we like to say, with a hope and a prayer,” Kendrick said.
The brainchild of legendary player and coach Buck O’Neil, it started in a one-room office with no seed money. With the help of many movers and shakers securing private funding, it opened in 1997 and has anchored the 18th and Vine District for nearly 30 years. Kendrick said interest in Negro Leagues Baseball history has grown significantly since then. It’s grown beyond what their 10-thousand square feet can handle.
“Every time we want to tell a new story, we literally have to tear something up inside the museum to do it,” Kendrick said. “We need the ability to expand on the existing stories, and hopefully this process will generate even more artifacts for us to display and tell incredible stories.”
He estimates needing to raise $30 million to make the project happen. The museum currently operates without an endowment. Kendrick would like to secure one this time.
“This is a bold move, but we know that we are more than prepared to take on the challenge,” Kendrick said.
THE HOTEL
When Collins pitched the idea, he was coming in as someone who knows the landscape well.
He founded Grayson Capital in 2022 after spending time with construction giant J.E. Dunn and independent Kansas City governmental agency Port KC.
He knows how the Negro Leagues Baseball Museum draws tourists from far and wide.
“I can’t tell you how many times I’ve talked to Bob about a piece of this project, and he’s talking to someone from Boston’s from someone from San Diego, St Louis,” Collins said. “This is a crown jewel.”
When asked at the public meeting if he had interior renderings, he said not yet, then gave a tempting teaser. Grayson Capital has been working with an established hotel brand to partner with them on the project. He wasn’t prepared to name them yet, but he gave assurances that it would not be a cookie cutter chain hotel.
“It’s going to be iconic, but also independent of the larger brand,” Collins said. “We’re designing it adding into the complexity and the interest of baseball, but we’re also including easter eggs.”
As an example, he described a couch made out of baseball leather, but with no shape or stitching that would make it overtly themed.
“Maybe you sit in that couch and you’re like, ‘Wow, this is baseball leather,’” he said. But it doesn’t look like a baseball couch.”
Matt Ledbetter, Grayson Capital’s director of development, said they’ve done feasibility studies that show the demand is there from tourists to the museum and for conventions. He said some MLB teams have expressed interest in staying there when traveling to take on the Royals. Access to I-70 is just a short drive up The Paseo.
He provided answers to questions from the audience which include the following:
- The lower level will have a bar and restaurant that can be used by museum visitors.
- There will also be a rooftop bar area.
- It will have 2400 square feet of dedicated convention room meeting space on the second floor that can be divided into two rooms.
They hope to break ground in the third quarter of 2025. No, it won’t be likely be open in time for the World Cup. But a 470-stall parking garage behind the space, which is a separate project already approved by the city, should be.
Collins said they anticipate the hotel portion of the project will cost $50 million. That will come from private capital. He said he may seek tax incentives with the city but haven’t reached that point yet.
The city’s website shows the museum and hotel plan is 35% through the approval process. With the required community engagement session completed, their next hearing will be on March 19 at 9 a.m. at City Hall before the City Plan Commission.
Copyright 2025 KCTV. All rights reserved.












